Description
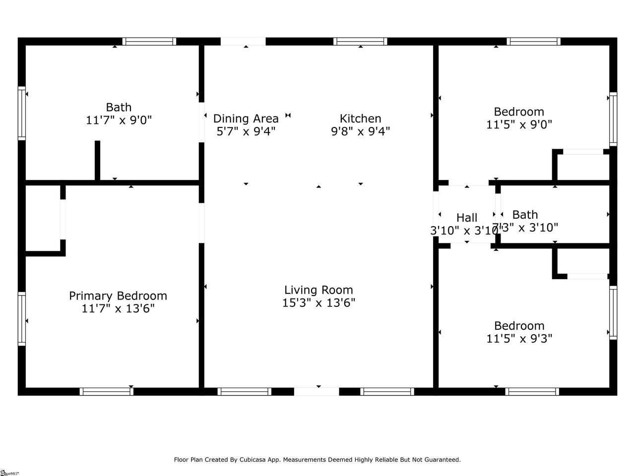
Don't miss this unique opportunity to own a thoughtfully converted mobile classroom now serving as a comfortable 3-bedroom, 1.5-bath dwelling. Situated on a manageable 0.22-acre lot, this property offers a blend of functionality, affordability, and recent upgrades. This property is an investors dream with an estimated rental income of $1395 per month! Step inside to find a cozy and efficient floor plan featuring three well-sized bedrooms, a full bath, and an additional half bath for guests or family convenience. Recent updates include a new roof and a new HVAC system, offering peace of mind and energy efficiency for years to come. The property also features a one-car detached garage, perfect for secure parking, storage, or a workshop space. Enjoy the convenience of being just 10 minutes from local schools and within walking distance to a neighborhood grocery store; an ideal location for easy, everyday living. Whether you're looking for a primary residence or a smart investment property, this versatile property has a lot to offer. Schedule your showing today!
-
0BEDS
-
0.22ACRES
-
0BATHS
-
01/2 BATHS
School Information
Description
Don't miss this unique opportunity to own a thoughtfully converted mobile classroom now serving as a comfortable 3-bedroom, 1.5-bath dwelling. Situated on a manageable 0.22-acre lot, this property offers a blend of functionality, affordability, and recent upgrades. This property is an investors dream with an estimated rental income of $1395 per month! Step inside to find a cozy and efficient floor plan featuring three well-sized bedrooms, a full bath, and an additional half bath for guests or family convenience. Recent updates include a new roof and a new HVAC system, offering peace of mind and energy efficiency for years to come. The property also features a one-car detached garage, perfect for secure parking, storage, or a workshop space. Enjoy the convenience of being just 10 minutes from local schools and within walking distance to a neighborhood grocery store; an ideal location for easy, everyday living. Whether you're looking for a primary residence or a smart investment property, this versatile property has a lot to offer. Schedule your showing today!
© 2025 Greater Greenville Association of Realtors Multiple Listing Service. All rights reserved. IDX information is provided exclusively for consumers' personal, non-commercial use and may not be used for any purpose other than to identify prospective properties consumers may be interested in purchasing. Information is deemed reliable but is not guaranteed accurate by the MLS or Yip Premier Real Estate LLC. Data last updated 2025-11-16T00:01:11.607.
