Description
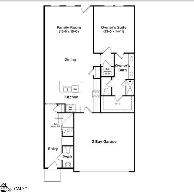
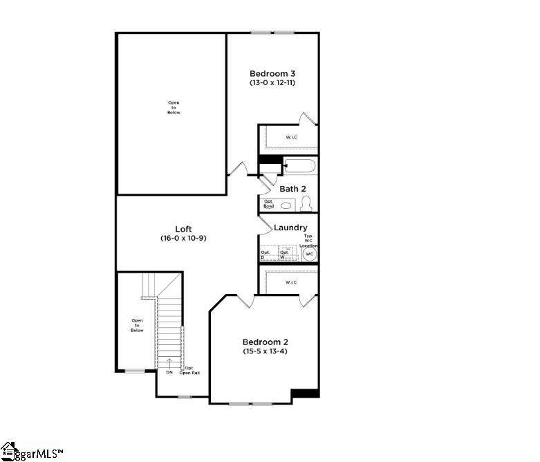
Proposed Construction Opportunity! Customize the home by visiting the design center to pick colors and options. Price listed is before options are added. Welcome to Silo Ridge! New townhomes in Anderson, SC just off of Hwy 81! The Lochlan is a luxury Craftsman style townhome with over 2200 square feet of open living space. Entering the home from your covered front porch you come into the spacious entryway with a two story foyer and a storage area under the stairs. In the open concept living and kitchen space the vaulted ceilings and tall windows give the room an airy and light feel and the kitchen has beautiful features including a center island with sink for additional prep space and seating, dark cabinetry, granite countertops, and stainless steel electric appliances. The Primary Suite is situated off the living room and features a spacious walk in closet, split vanities, and step in shower. The staircase off the foyer leads to the second level where there are two more bedrooms, both with walk in closets, a full bath and a loft area perfect for extra living space or even a home office. An added plus is your lawn maintenance is taken care of so you will have more time to enjoy your new home! Discover a lifestyle that blends comfort and convenience. Premier location just off HWY 81, minutes away from shopping, restaurants, and entertainment opportunities. Only 2 miles from the sought after T.L. Hanna High School and less than 15 minutes from Anderson University and the Downtown Anderson area. Easy access to the entire upstate with I-85 under 3 miles away! These proven floorplans have flexible designs for all lifestyles with main or second level primary suites, spacious open concept layouts, modern kitchens, and eye-catching craftsman style exteriors. With low maintenance living and the notable surrounding area Silo Ridge is an exceptional community in a premier location. Come by today for more information and make Silo Ridge your new home!
-
3BEDS
-
0.04ACRES
-
2BATHS
-
11/2 BATHS
-
2200-2399SQFT
-
$118$/SQFT
School Information
Description
Proposed Construction Opportunity! Customize the home by visiting the design center to pick colors and options. Price listed is before options are added. Welcome to Silo Ridge! New townhomes in Anderson, SC just off of Hwy 81! The Lochlan is a luxury Craftsman style townhome with over 2200 square feet of open living space. Entering the home from your covered front porch you come into the spacious entryway with a two story foyer and a storage area under the stairs. In the open concept living and kitchen space the vaulted ceilings and tall windows give the room an airy and light feel and the kitchen has beautiful features including a center island with sink for additional prep space and seating, dark cabinetry, granite countertops, and stainless steel electric appliances. The Primary Suite is situated off the living room and features a spacious walk in closet, split vanities, and step in shower. The staircase off the foyer leads to the second level where there are two more bedrooms, both with walk in closets, a full bath and a loft area perfect for extra living space or even a home office. An added plus is your lawn maintenance is taken care of so you will have more time to enjoy your new home! Discover a lifestyle that blends comfort and convenience. Premier location just off HWY 81, minutes away from shopping, restaurants, and entertainment opportunities. Only 2 miles from the sought after T.L. Hanna High School and less than 15 minutes from Anderson University and the Downtown Anderson area. Easy access to the entire upstate with I-85 under 3 miles away! These proven floorplans have flexible designs for all lifestyles with main or second level primary suites, spacious open concept layouts, modern kitchens, and eye-catching craftsman style exteriors. With low maintenance living and the notable surrounding area Silo Ridge is an exceptional community in a premier location. Come by today for more information and make Silo Ridge your new home!
Related Properties
© 2026 Greater Greenville Association of Realtors Multiple Listing Service. All rights reserved. IDX information is provided exclusively for consumers' personal, non-commercial use and may not be used for any purpose other than to identify prospective properties consumers may be interested in purchasing. Information is deemed reliable but is not guaranteed accurate by the MLS or Yip Premier Real Estate LLC. Data last updated 2026-01-14T15:01:44.09.
