Description
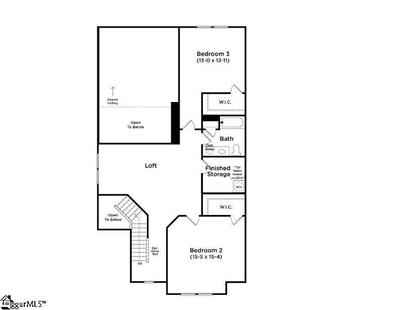
Proposed Construction Opportunity! Customize the home by visiting the design center to pick colors and options. Price listed is before options are added. Welcome to Silo Ridge! New townhomes in Anderson, SC just off of Hwy 81! The Lakehurst is a luxury Craftsman style townhome with over 2300 square feet of functional living space, perfect for entertaining. Entering the home from your side porch there is a 2 story foyer along with a mud room off the two car garage with stackable accomodating washer/dryer connections. In the open concept living and kitchen area the vaulted ceilings and tall windows flood the room with lots of natural light and the open kitchen features a center island with sink for additional prep space and seating, dark cabinetry, granite countertops and stainless steel electric appliances.The Primary Suite is situated off the living room and features a spacious walk in closet, split vanities, and step in shower. The staircase off the foyer leads to the second level where there are two more bedrooms, both with walk in closets, a full bath and a loft area, perfect for extra living space or even a home office. There is also a walk in laundry room upstairs. An added plus is your lawn maintenance is taken care of so you will have more time to enjoy your new home! Discover a lifestyle that blends comfort and convenience. Premier location just off HWY 81, minutes away from shopping, restaurants, and entertainment opportunities. Only 2 miles from the sought after T.L. Hanna High School and less than 15 minutes from Anderson University and the Downtown Anderson area. Easy access to the entire upstate with I-85 under 3 miles away! With low maintenance living and the notable surrounding area Silo Ridge is an exceptional community in a premier location. Come by today for more information and make Silo Ridge your new home!
-
3BEDS
-
0.04ACRES
-
2BATHS
-
11/2 BATHS
-
2200-2399SQFT
-
$123$/SQFT
School Information
Description
Proposed Construction Opportunity! Customize the home by visiting the design center to pick colors and options. Price listed is before options are added. Welcome to Silo Ridge! New townhomes in Anderson, SC just off of Hwy 81! The Lakehurst is a luxury Craftsman style townhome with over 2300 square feet of functional living space, perfect for entertaining. Entering the home from your side porch there is a 2 story foyer along with a mud room off the two car garage with stackable accomodating washer/dryer connections. In the open concept living and kitchen area the vaulted ceilings and tall windows flood the room with lots of natural light and the open kitchen features a center island with sink for additional prep space and seating, dark cabinetry, granite countertops and stainless steel electric appliances.The Primary Suite is situated off the living room and features a spacious walk in closet, split vanities, and step in shower. The staircase off the foyer leads to the second level where there are two more bedrooms, both with walk in closets, a full bath and a loft area, perfect for extra living space or even a home office. There is also a walk in laundry room upstairs. An added plus is your lawn maintenance is taken care of so you will have more time to enjoy your new home! Discover a lifestyle that blends comfort and convenience. Premier location just off HWY 81, minutes away from shopping, restaurants, and entertainment opportunities. Only 2 miles from the sought after T.L. Hanna High School and less than 15 minutes from Anderson University and the Downtown Anderson area. Easy access to the entire upstate with I-85 under 3 miles away! With low maintenance living and the notable surrounding area Silo Ridge is an exceptional community in a premier location. Come by today for more information and make Silo Ridge your new home!
Related Properties
© 2026 Greater Greenville Association of Realtors Multiple Listing Service. All rights reserved. IDX information is provided exclusively for consumers' personal, non-commercial use and may not be used for any purpose other than to identify prospective properties consumers may be interested in purchasing. Information is deemed reliable but is not guaranteed accurate by the MLS or Yip Premier Real Estate LLC. Data last updated 2026-01-22T16:01:45.853.
